More Space to Grow: Support The Arboretum Nature Centre Renovation
Help renew a community-rooted space for learning, connection, and discovery



Since 1978, The Arboretum Nature Centre has quietly shaped how thousands of people experience nature. This beloved Guelph landmark has become a place of firsts. It’s where a child sees a garter snake for the first time. Where schoolchildren first learned the word “pollinator” before it entered everyday vocabulary. Where a tiny chickadee, banded right here, is among the oldest ever recorded in Canada.
A Nature Centre for the Next Generation
With thoughtful respectful renovations, we aim to preserve everything that makes the Nature Centre special, while preparing it to welcome more people for years to come.
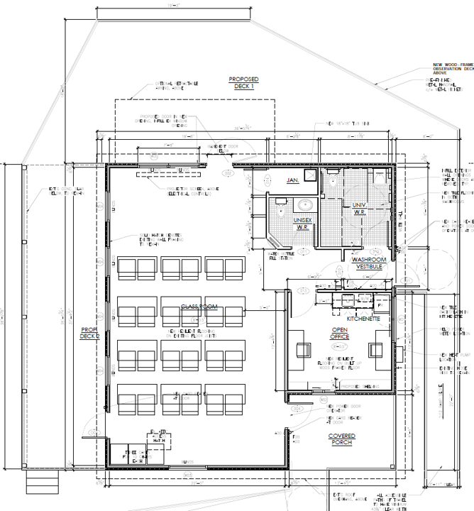
- Flexible, accessible indoor spaces for classes and community programs.
- Internet and WiFi to support modern learning needs and citizen science.
- New outdoor observation deck overlooking our old growth forest.
- Upgraded bathrooms, accessibility features, and an efficient heating system.
These improvements will allow us to expand programming, welcome larger and more diverse groups, and offer a higher quality learning experience to everyone who comes through the doors.

We need your help!
Philanthropic support for the renewed Nature Centre offers a chance to leave a visible and meaningful legacy in one of the region’s most beloved natural spaces.
Naming opportunities include: Building (50%), Classroom, Forest-edge observation deck, Accessible washroom, Naturalist office and resource room. A new Donor Wall will recognize those who made this vision possible and believe in the power of nature-based education.
To get involved, please reach out to Arboretum Director, Justine Richardson
Justine.richardson@uoguelph.ca | 519-824-4120 x 52356